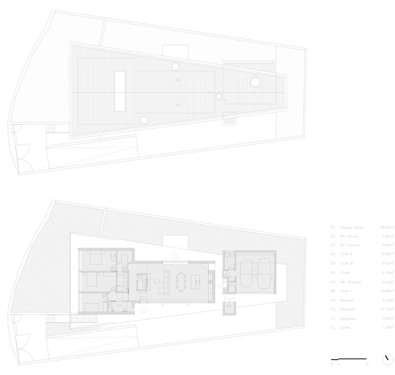
CASA SALES



Coordenadores:

Nelson Ferreira

 

Equipa:

Mariana Magalhães

Patricia Garcês

Ano do Projeto: 2019 -

Área: 294,00M2

Local: Santa Marta, Penafiel, Porto

Colaboração:

Especialidades/ Engenharias

Ana Pereira

Orlando Sousa

Crie seu próprio site com Webador